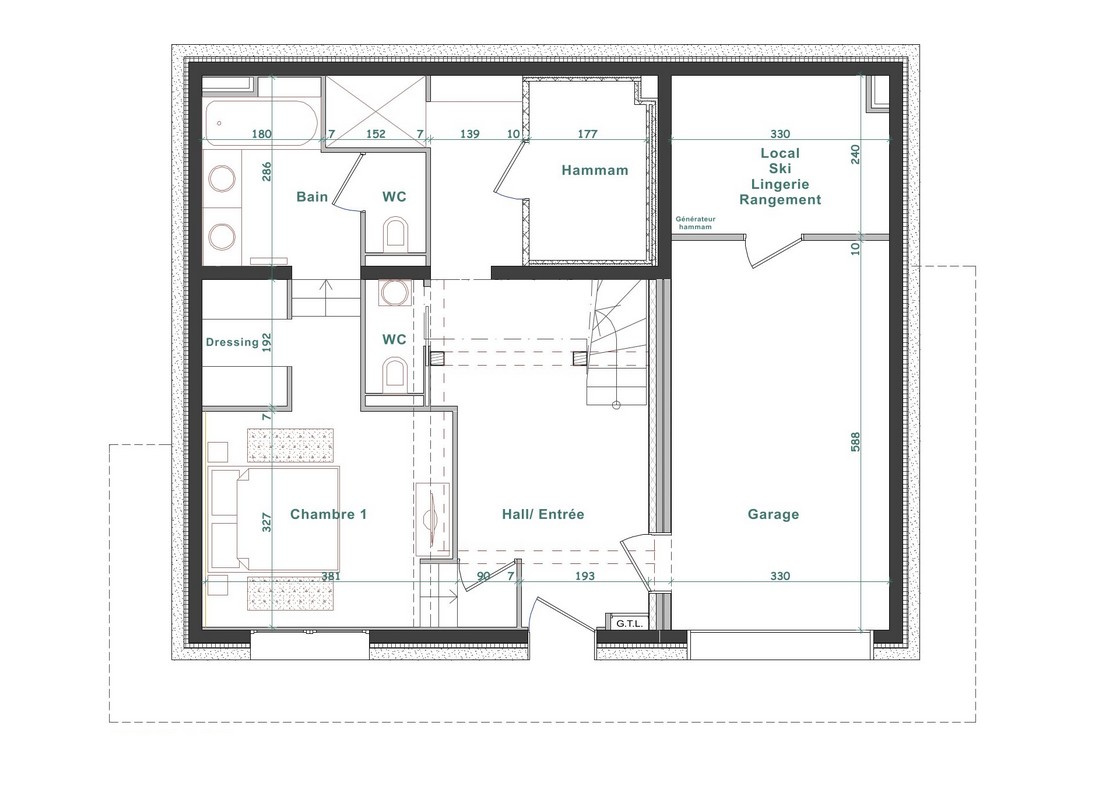
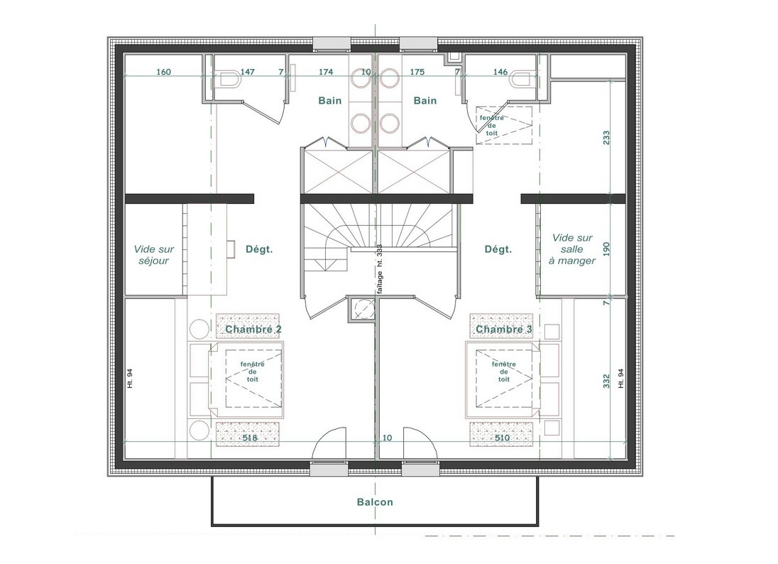
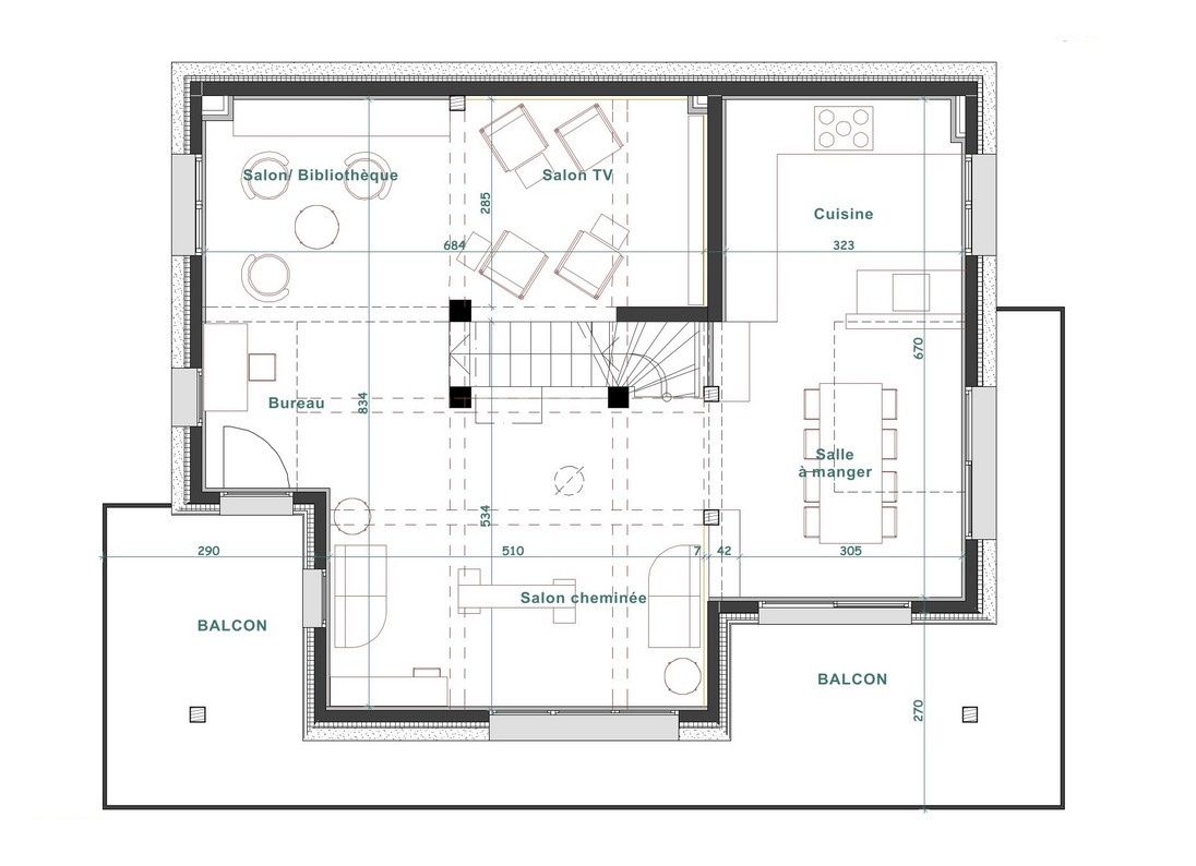
Située dans le charmant village de Villarenger, cette maison offre un cadre de vie agréable au coeur de la vallée des Belleville. La maison bénéficie d'une belle terrasse offrant une vue dégagée, idéale pour profiter de l'environnement montagnard environnant. Son potentiel et ses volumes généreux en font une opportunité rare sur le marché. En bon état général, elle dispose de quatre chambres, d'une salle de bains, d'une salle de bains attenante, ainsi que de nombreux espaces fonctionnels : un cellier, une buanderie et un local à aménager de 44 m2.
Plus de détails
Diagnostics de performance énergétique &
Gaz à Effet de Serre
Performances énergétiques
Logement extrêmement performantConsommation énergétique :
204 kWh/m²/an
Classe énergie :
Emissions de gaz a effet de serre
Peu d'émissions de CO₂Émissions de gaz à effet de serre :
5 kg CO₂/m²/an
Classe climat :
Où se situe le logement
Les informations sur les risques auxquels ce bien est exposé sont disponibles sur le site Géorisques https://www.georisques.gouv.fr.






















































































































