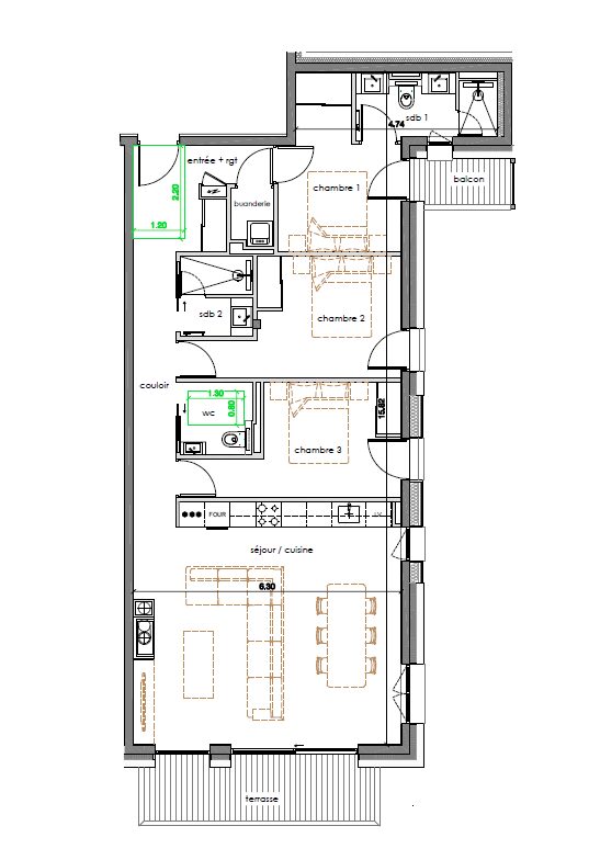
Au coeur de Saint-Martin-de-Belleville, cet appartement neuf de 90,90 m², situé au sein des Chalets Alpins, offre 3 chambres et des prestations haut de gamme. À seulement 250 m des pistes et des commerces, il bénéficie d'un emplacement privilégié dans les 3 Vallées. Une occasion idéale de réaliser votre projet d'acquisition dans la Vallée des Belleville tout en étant décisionnaire quant à l'aménagement intérieur ainsi que le choix des matériaux. Acquisition avec frais de notaire à taux réduit (2,5%) et possibilité de récupérer la TVA. Alliant architecture traditionnelle et lignes contemporaines, il séduit par ses volumes lumineux, ses vues dégagées et son confort moderne (ascenseur, ski room, cave, accès sécurisé). Un bien rare, alliant authenticité et élégance alpine.
Plus de détails
Où se situe le logement
Les informations sur les risques auxquels ce bien est exposé sont disponibles sur le site Géorisques https://www.georisques.gouv.fr.





