CHAVIERE
La résidence Chavière, avec ascenseur, se situe au coeur du quartier de la Croisette, au centre des Menuires, au pied des pistes, et à 50 m du départ des cours de ski. Vous trouverez de nombreux commerces et restaurants à proximité, ainsi que la gare routière et le centre sportif.
Les équipements
Les services
Emplacement, environnement
LES MENUIRES - La Croisette
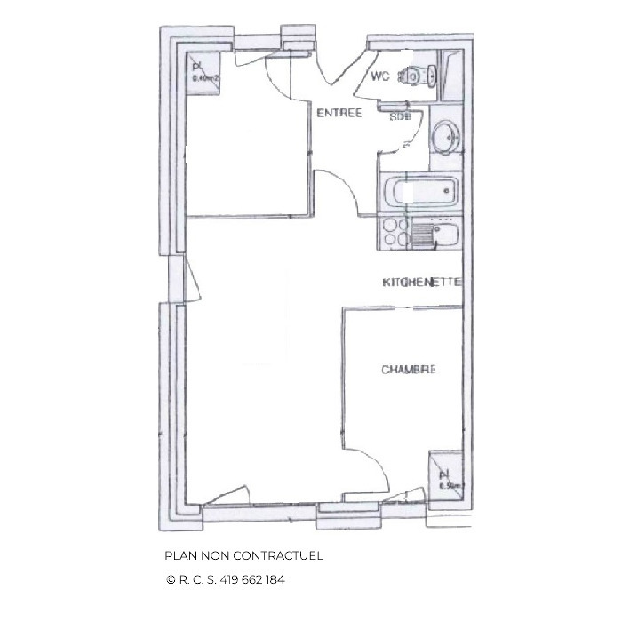
Résidence Chavière N°425, 2 pièces pour5 personnes, 40m², 4ème étage par ascenseur, balcon exposé Sud , vue sur la Croisette
PRESTATION INCLUSE (en saison d'hiver / de décembre à avril) : ménage de fin de séjour. Prestations sur demande en dehors de cette période.
AUTRES SERVICES DISPONIBLES SUR RESERVATION : linge (lit, toilette, cuisine...), services para-hôteliers et autres prestations (sous réserve de disponibilité).
Cuisine ouverte sur le séjour : plaques de cuisson vitrocéramiques (x3), hotte, four, micro-ondes, réfrigérateur (congèle 10L), lave-vaisselle, cafetière à dosette Senseo, bouilloire, grille-pain, appareil à raclette
Séjour : banquette lit simple (1x80 cm), lit gigogne simple (1x80 cm), télévision
Chambre : lit simple superposé (2x80 cm), lit simple (1x80 cm), petit balcon exposé Nord
Salle de bains : lavabo, douche
Toilettes séparées
Informations complémentaires :
Appartement équipé de couettes
Chauffage collectif
Appartement non fumeur
Animaux refusés
Casier à skis au -2
Catégorie : CONFORT
Label qualité station : 4 Flocons "Or"
Numéro d'enregistrement
73257006474AK
Où se situe le logement
Les informations sur les risques auxquels ce bien est exposé sont disponibles sur le site Géorisques https://www.georisques.gouv.fr.















































